Drzwi aluminiowe
Wszystkie produkty
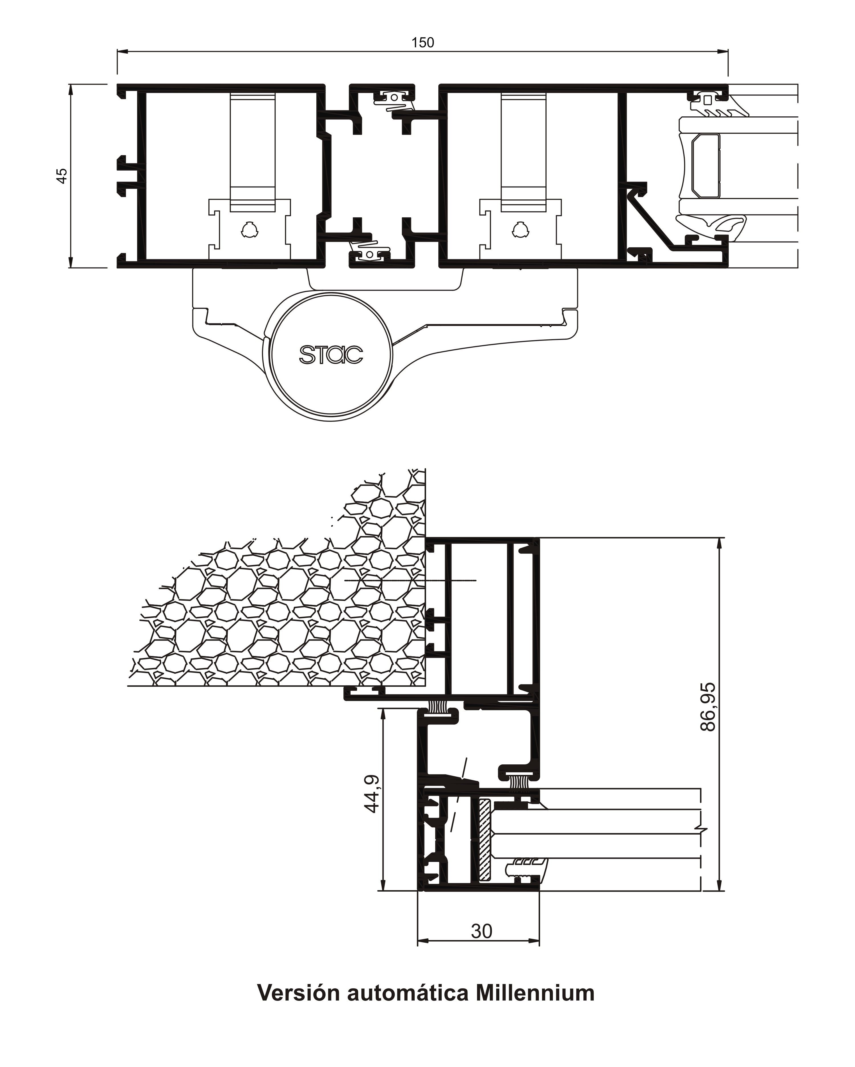
System Drzwiowy Millenium 2000
-
System drzwi dwuskrzydłowych o szerokości 45 mm dla lokali usługowych i budynków użyteczności publicznej.
-
Występuje w dwóch wersjach:
System drzwiowy Millennium 2000: wyposażony w zawiasy nawierzchniowe dwu- i trójskrzydełkowe o wysokiej wytrzymałości i możliwości utrzymania skrzydła o maksymalnym ciężarze 180 kg.
System drzwiowy Millennium 2000 Automatyczny: pozwala na zaprojektowanie drzwi o skrzydłach przesuwnych, otwieranych automatycznie. To nowoczesne rozwiązanie optymalizuje przestrzeń pomieszczeń oraz jest idealne dla miejsc o dużym natężeniu ruchu (biura, centra handlowe, szpitale, itp.). Gwarantuje wygodne użytkowanie oraz bezpieczeństwo w sytuacjach awaryjnych. -
System przesuwny automatyczny pozwala na zastosowanie ślusarki o minimalnym przekroju.
-
Istnieje możliwość zaprojektowania drzwi jedno- lub dwuskrzydłowych, z naświetlami bocznymi lub bez, oraz dwie opcje napędu sterującego drzwiami do wyboru: jedna o wysokości 12 cm oraz druga, o wysokości zaledwie 7 cm.
-
System pozwala na zastosowanie napędu, który umożliwia wykonanie drzwi automatycznych rozwiernych.
- Maksymalna grubość szklenia: 30 mm
- Rodzaje skrzydeł
Otwierane do wewnątrz: 1 i 2 skrzydłowe
Otwierane na zewnątrz: 1 i 2 skrzydłowe
Otwierane wahadłowo: 1 i 2 skrzydłowe
Otwieranie automatyczne: przesuwne jedno i dwuskrzydłowe
rozwierne jednoskrzydłowe otwierane na zewnątrz i do wewnątrz - Przekroje:
Ościeżnica 45 mm
Skrzydło 45 mm - Grubość profilu
Okno 2,0 mm - Wymiary maksymalne / Skrzydło
Rozwierne
Szerokość (L) = 1450 mm
Wysokość (H) = 3000 mm
Przesuwne automat.
Szerokość (L) = 2000 mm
Wysokość (H)= 3000 mm
Wahadłowe
Szerokość (L) = 2000 mm
Wysokość (H)= 3000 mm - Ciężar maksymalny / Skrzydło:
190 Kg
120 Kg (Wersja automatyczna)
Skonsultuj maksymalne wymiary i wagę według typologii. - Wykończenia:
Lakierowanie
Anodowanie
- Izolacyjność cieplna: Uw od 2,3(W/m²K)
Sprawdzić rodzaj, wymiary i szklenia. - Maksymalna izolacyjność akustyczna: Rw=38 dB
- Odporność na uderzenia ciał miękkich: (EN 13049) KLASA 5 (Max.)
Badanie referencyjne drzwi dwuskrzydłowych 1,80 x 2,20 m Szyba warstwowa 3+3






