Fasady

Wszystkie produkty

Fasada Equity

Fasada Equity

  • Nowa generacja fasad bazująca na konstrukcji słupowo-ryglowej o szerokiej gamie profili, wychodząca naprzeciw najróżniejszym potrzebom estetycznym i konstrukcyjnym projektów architektonicznych, dzięki stosowaniu spójnych rozwiązań.

  • Zarówno przekrój kształtowników (mocowanych do konstrukcji nośnej), wynoszący od 16 do 250 mm w przypadku słupów i od 22.5 do 255.5 mm w przypadku rygli, jak i akcesoria dodatkowe są takie same dla wszystkich nowych fasad CORTIZO. Bogaty wybór profili i sposobów ich łączenia pozwala na wykonanie każdego rodzaju elewacji (pionowych, nachylonych, narożnikowych o kącie 90°, kątowych, wielokątnych) oraz daje wiele możliwości zastosowania szkła o dużych rozmiarach i wadze.

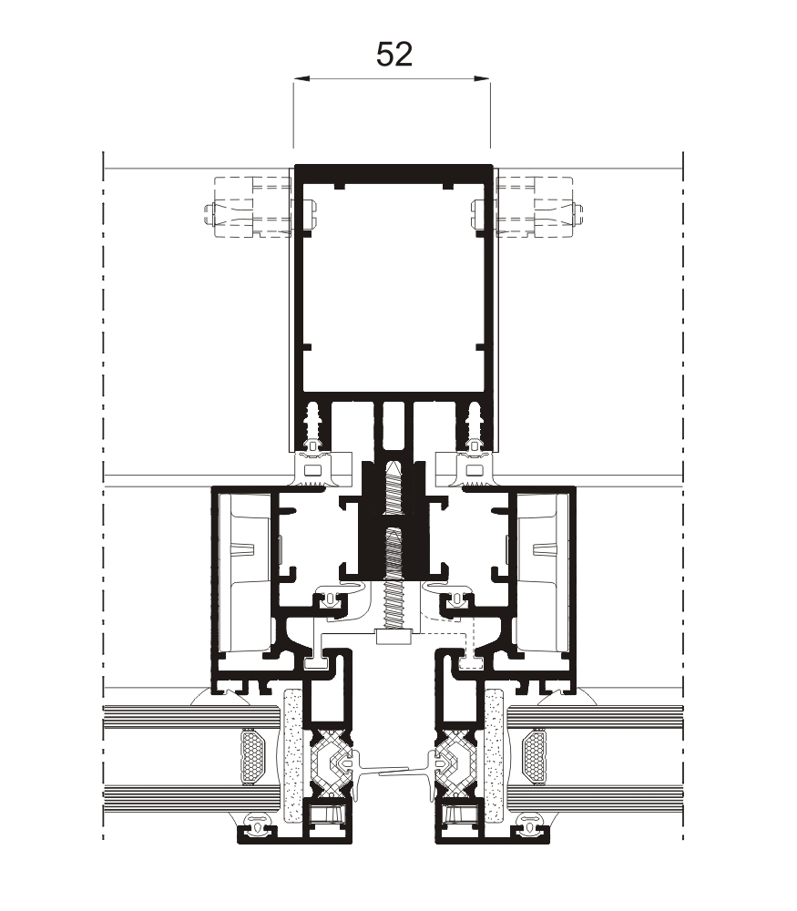
  • W systemie Fasada SST 52 szkło przytwierdzane jest do obramowania obwodowego w sposób mechaniczny, a dzięki obecności zewnętrznego profilu ozdobnego, który zapewnia stabilną pozycję szkła, nie trzeba stosować łączenia chemicznego silikonem strukturalnym, tak, jak to miało miejsce w przypadku systemu ST 52.

  • Pierwszą barierą zapewniającą fasadzie wodoszczelność jest uszczelka z materiału E.P.D.M. zainstalowana obwodowo w każdym module. Zewnętrzna płaszczyzna elewacji charakteryzuje się otwartymi rowkami wokół szkleń, otoczonymi ramkami z aluminium, natomiast zamknięcie rowków osiąga się dzięki zastosowaniu profili kołnierzowych umieszczonych pomiędzy uszczelkami. 
  • Szklenie
    Maksymalna grubość szklenia 28 mm
    Minimalne grubość szklenia 6 mm

    Skonsultuj wymiary i typ szklenia

  • Rodzaje skrzydeł
    Wychylne ukryte

  • Przekroje
    Słup 52 mm
    Rygiel 52 mm

  • Grubość profilu
    Słup 2,1/ 3 mm
    Rygiel 2,1 mm

  • Profile z przekładką termiczną o szerokości: 18 mm

  • Wymiary maksymalne/minimalne
    Wychylne ukryte
    Szerokość Min. (L) = 500 mm
    Wysokość Min. (H) = 650 mm
    Szerokość Mak. (L) = 2500 mm
    Wysokość Mak. (H) = 2500 mm

  • Ciężar maksymalny/skrzydło
    180 Kg (Okno wychylne)

  • Kwatery stałe: 350 kg
    Skonsultuj maksymalne wymiary i wagę według typologii.

  • Wykończenia
    Lakierowanie
    Anodowanie
  • Izolacyjność cieplna
    Ucw od 0,8 (W/m²K)

    Sprawdzić rodzaj, wymiary i szklenie

  • Przepuszczalność powietrza
    (EN 12152) KLASA AE

  • Wodoszczelność
    (EN 13114) KLASA RE750

  • Wytrzymałość na obciążenie wiatrem
    (EN 13116) SPEŁNIA

    (obciążenie obliczeniowe 2000 Pa - obciążenie bezpieczne 3000 Pa). Badanie referencyjne fasady 3,00 x 3,50 m.
© 2018 Aluatelier. All Rights Reserved.