Okna aluminiowe
Wszystkie produkty
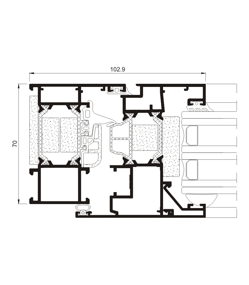
COR - 70 C16 ST izolowany termicznie
-
System ekonomicznego okuwania o głębokości 70 mm pozwala na zoptymalizowanie pracy i czasu produkcji każdego okna oraz przekłada się na możliwość skrócenia czasu montażu okuć skrzydła i ościeżnicy do 5 minut.
-
Przenikalność cieplna wynosi od 0.9 W/m²K i uzyskana została dzięki doskonałemu dopasowaniu profili aluminiowych, przekładki termicznej 35 mm, uszczelek z materiału EPDM oraz pianki z poliolefiny, która wpływa na podniesienie właściwości termicznych.
-
Duża zdolność szklenia wynosząca 55 mm dodatkowo wpływa na zwiększenie świetnych właściwości termicznych oraz akustycznych.
- Maksymalna grubość szklenia: 55 mm
- Rodzaje skrzydeł
Otwierane do wewnątrz: Rozwierne, rozwierno-uchylne, harmonijkowe, uchylno-przesuwne i uchylne. - Przekroje:
Ościeżnica 70 mm
Skrzydło 78 mm - Grubość profilu
Okno 1,5 mm - Szerokość przekładki termicznej:
Ościeżnica - 35 mm
Skrzydło - 30 mm - Wymiary maksymalne / Skrzydło
Szerokość (L) = 1600 mm
Wysokość (H) = 2600 mm - Ciężar maksymalny / Skrzydło: 120 Kg
Skonsultuj maksymalne wymiary i wagę według typologii. - Wykończenia:
Opcja dwukolorowa
Lakierowanie
Anodowanie
- Izolacyjność cieplna: Uw od 0,9 (W/m²K)
Sprawdzić rodzaj, wymiary i szklenia. - Maksymalna izolacyjność akustyczna: Rw=46 dB
- Przepuszczalność powietrza: (EN 12207) KLASA 4
- Wodoszczelność: (EN 12208) KLASA E1500
- Wytrzymałość na obciążenie wiatrem: (EN 12210) KLASA C5
Badanie referencyjne okna 1,23x1,48m.




